
Технические характеристики:
Модельный ряд серии ZOTA «Magna»
| Модель | Артикул | Полезная мощность, кВт | Диаметр дымохода, мм | Габариты (ШxВxГ), мм |
Вес, кг | Цена, руб. | Заказать товар | |
|---|---|---|---|---|---|---|---|---|
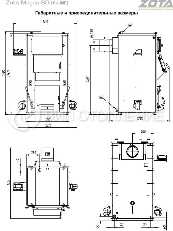
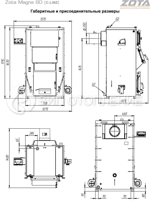
| ZOTA «Magna» 60 | MG4931120060 | 60 | 250 | 1375×1715×1175 | 680 |
319 100
|
шт.
|
|
| ZOTA «Magna» 80 | MG4931120080 | 80 | 250 | 1375×1785×1290 | 780 |
351 700
|
шт.
|
|
| ZOTA «Magna» 100 | MG4931120100 | 100 | 250 | 1375×1935×1290 | 870 |
386 200
|
шт.
|
Описание ZOTA «Magna»
Стальные твердотопливные полуавтоматические котлы «Zota Magna» предназначены для теплоснабжения индивидуальных жилых домов и зданий коммунально-бытового назначения, оборудованных системой водяного отопления с принудительной циркуляцией. Изготавливаются в исполнении для умеренных и холодно-климатических зон. Конструкция котлов позволяет работать в системах с давлением теплоносителя до 3 бар и максимально допустимой температурой 80 °C. В линейке представлены 3 модели мощностью 60, 80 и 100 кВт. Обновленные модели комплектуются контроллером «C-Line».
Топка котлов «Zota Magna» довольно глубокая, что позволяет сжигать твердое топливо любого вида – уголь (орех 20-50 мм, рядовой 50-300 мм), дрова, древесные и угольные топливные брикеты, бездымное топливо. А большая вместимость обеспечивает время работы в длительном режиме до 34 часов, выдавая при этом до 30% мощности от номинальной, при соответствующей настройке режима горения. Котел может работать в автоматическом, полуавтоматическом и ручном режимах.
Теплообменник котлов «Zota Magna» состоит из горизонтальных трубных и вертикальных поверхностей, образуя конструкцию наименьших габаритов. Такой комбинированный теплообменник в совокупности с использованием шамотных кирпичей позволяет получить наибольший КПД методом эффективного дожигания газов. Шамотные кирпичи, развивая высокую температуру, дополнительно дожигают попадающие на их поверхность частицы топлива, благодаря чему на стенках котла собирается меньше сажи. Внутри топки установлены подвижные регулируемые колосники, для удобства чистки от золы которых существует механизм встряхивания, работающий без открытия загрузочной и прочистной дверец.
Управление работой котла «Zota Magna» и системой отопления происходит с помощью контроллера «C-Line 200 SF». Автоматика обеспечивает адаптивное управление мощностью (режим «ADAPT», автоматическая адаптация количества подаваемого топлива и оборотов вентилятора наддува для поддержания необходимой мощности, исходя из потребностей системы), а также управляет насосами котла и ГВС, дымососом и золоудалением. Контроллер комплектуется датчиком температуры ГВС и позволяет работать с выносными датчиками воздуха и воды, имеет функцию «Погодозависимое управление». Пользователь может настроить основные параметры и изменить мощность котла, температуру теплоносителя, температуру выносного датчика и температуру ГВС. Опционально контроллер «C-Line» имеет возможность подключения комнатного термостата с управлением по сухому контакту, а также модулей GSM/Wi-Fi или GSM/LAN для удаленного управления. С модулем «Zota GSM» активируется управление по времени температурой теплоносителя, ГВС, воздуха и мощностью. Встроенная цифровая шина OpenTherm позволяет подключать к контроллеру сторонние устройства, работающие по соответствующему протоколу (возможность интеграции в системы «умного дома»). Заводские настройки блока автоматики обеспечивают эффективное сгорание топлива.
В котле «Zota Magna» предусмотрена возможность установки электронагревательного элемента (блока ТЭН), служащего для поддержания рабочей температуры теплоносителя при отсутствии основного топлива (приобретается дополнительно).
В случае отсутствия электричества для бесперебойной работы котла «Zota Magna» в полуавтоматическом режиме рекомендуется установить источник бесперебойного питания. Также можно топить полностью вручную, предварительно смонтировав механический регулятор тяги (дополнительное оборудование). Он управляет расположенной в дверце зольника поддувальной заслонкой, обеспечивая тонкую регулировку ее открытия в зависимости от температуры, установленной на шкале тягорегулятора.
Основные особенности и преимущества котлов «Zota Magna»: